hero-image-0
Picasso Condos
Sold
Sold
1
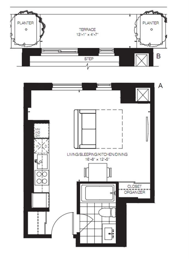
From 351
unit-banner-imageunit-banner-imageunit-banner-image
351 Plan details
351 Plan is now sold.
Check out available nearby plans below.