hero-image-0
Picasso Condos
Sold
Sold
1
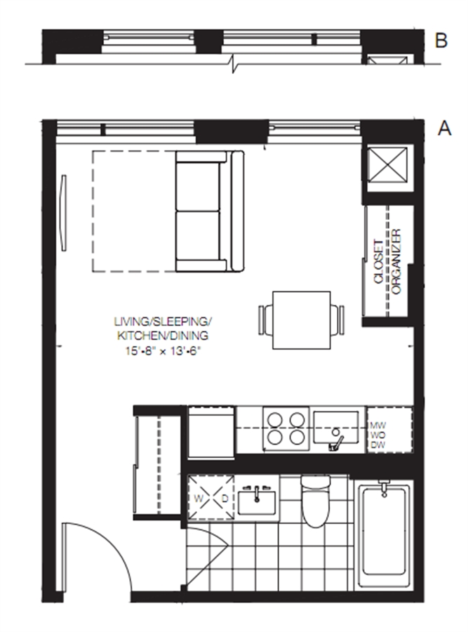
From 347
unit-banner-imageunit-banner-imageunit-banner-image
347 Plan details
347 Plan is now sold.
Check out available nearby plans below.