hero-image-0
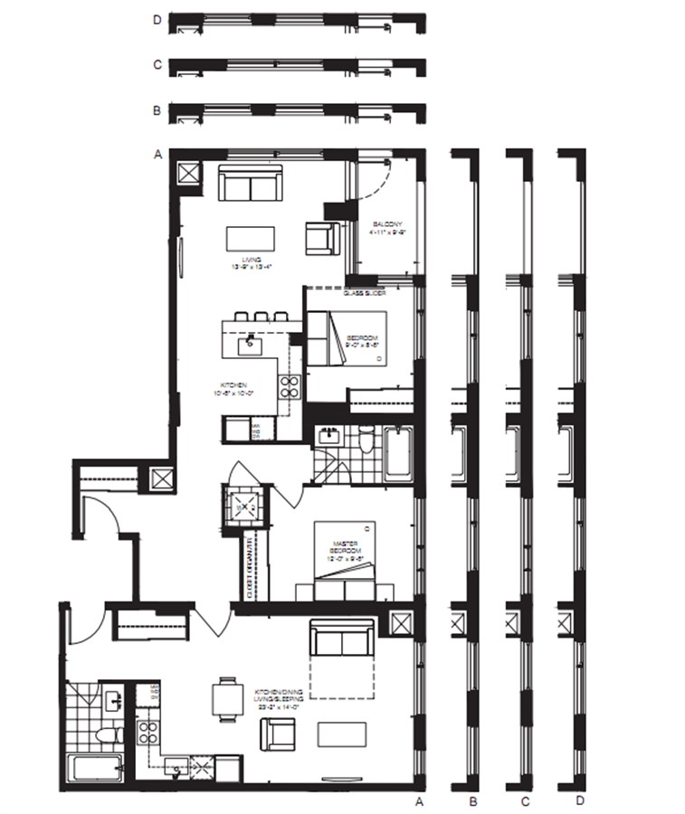
Picasso Condos
Sold
Sold
3
2
From 1,289
unit-banner-imageunit-banner-imageunit-banner-image
1289 Plan details
1289 Plan is now sold.
Check out available nearby plans below.