FEATURED
1G+D
Queen Church
Garden District, Toronto
B21
Motto
Bloorcourt Village, Toronto
1F+D
B18
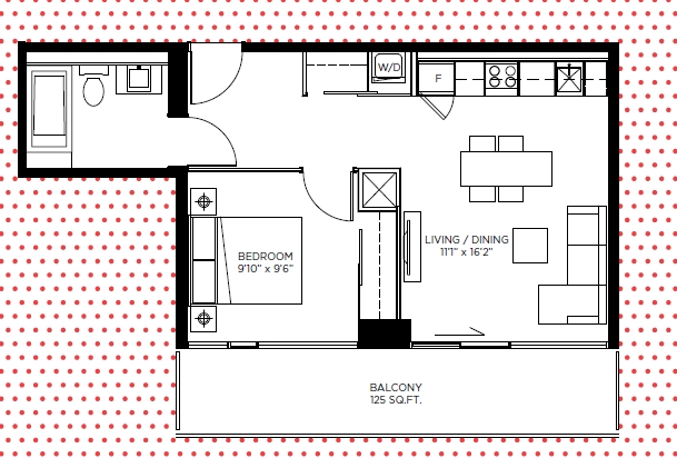
1E+D
B17
B15
B20A
Here is every GTA high-rise and mid-rise condo development launching in fall 2016
Builders are gearing up for launches across the Greater Toronto Area this fall.