FEATURED
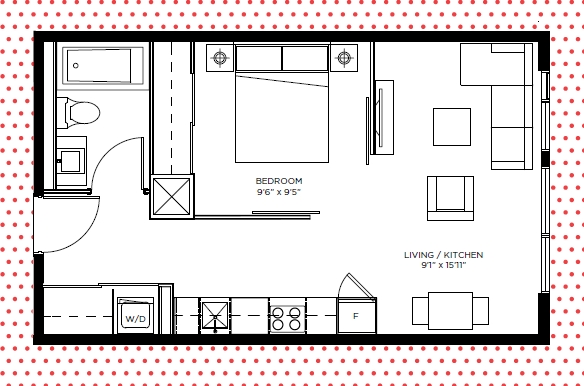
B20A
Motto
Bloorcourt Village, Toronto
1G+D
Queen Church
Garden District, Toronto
1E+D
B21
1F+D
B15
B18
B17
Here is every GTA high-rise and mid-rise condo development launching in fall 2016
Builders are gearing up for launches across the Greater Toronto Area this fall.