FEATURED
1F+D
Queen Church
Garden District, Toronto
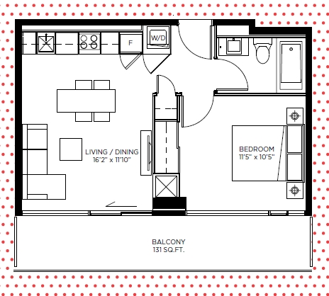
B15
Motto
Bloorcourt Village, Toronto
B20A
B17
1E+D
B21
1G+D
B18
Here is every GTA high-rise and mid-rise condo development launching in fall 2016
Builders are gearing up for launches across the Greater Toronto Area this fall.