FEATURED
B17
Motto
Bloorcourt Village, Toronto
1F+D
Queen Church
Garden District, Toronto
B20A
B15
B21
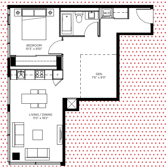
1G+D
B18
1E+D
Here is every GTA high-rise and mid-rise condo development launching in fall 2016
Builders are gearing up for launches across the Greater Toronto Area this fall.