hero-image-0

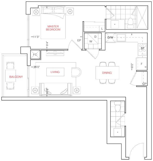
1BP Plan

By

Tridel

   |   

Parfait At Atria

Parfait At Atria
Sold
Sold
1
1
1
From 653
unit-banner-imageunit-banner-imageunit-banner-image
1BP Plan details
1BP Plan is now sold.
Check out available nearby plans below.