hero-image-0

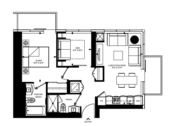
Tower Suite E Plan

By

Great Gulf

   |   

Pace Condos

Pace Condos
Sold
Sold
1
From 643
unit-banner-imageunit-banner-imageunit-banner-image
Tower Suite E Plan details
Tower Suite E Plan is now sold.
Check out available nearby plans below.