hero-image-0

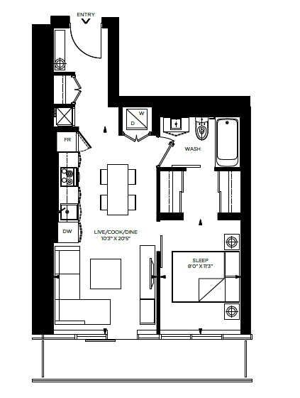
Tower Suite A Plan

By

Great Gulf

   |   

Pace Condos

Pace Condos
Sold
Sold
1
From 537
unit-banner-imageunit-banner-imageunit-banner-image
Tower Suite A Plan details
Tower Suite A Plan is now sold.
Check out available nearby plans below.