hero-image-0

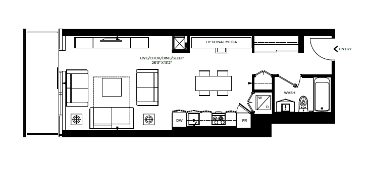
City Suite A Plan

By

Great Gulf

   |   

Pace Condos

Pace Condos
Sold
Sold
From 526
unit-banner-imageunit-banner-imageunit-banner-image
City Suite A Plan details
City Suite A Plan is now sold.
Check out available nearby plans below.