hero-image-0
One Valhalla Towns and Condos
Sold
Sold
3
From 1,356
unit-banner-imageunit-banner-imageunit-banner-image
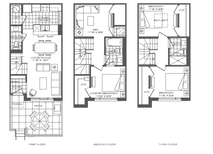
Townhome B Plan details
Townhome B Plan is now sold.
Check out available nearby plans below.