hero-image-0
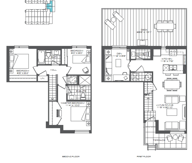
One Valhalla Towns and Condos
Sold
Sold
3
From 1,258
unit-banner-imageunit-banner-imageunit-banner-image
Tonwhome A Plan details
Tonwhome A Plan is now sold.
Check out available nearby plans below.