hero-image-0

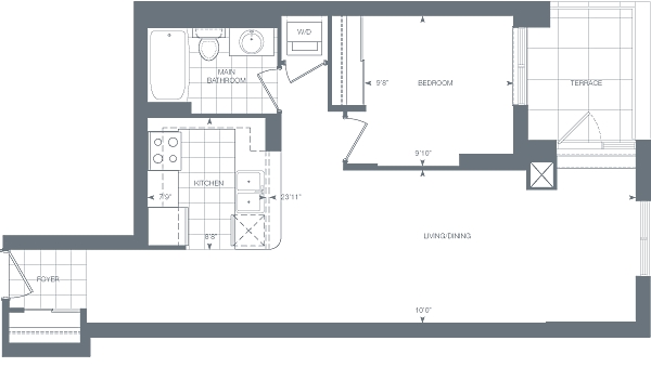
Suite 07 (Third Floor) Plan

One Sherway Tower 4
Sold
Sold
1
From 700
unit-banner-imageunit-banner-imageunit-banner-image
Suite 07 (Third Floor) Plan details
Suite 07 (Third Floor) Plan is now sold.
Check out available nearby plans below.