1W+D
6080 Yonge
Newtonbrook West, Toronto
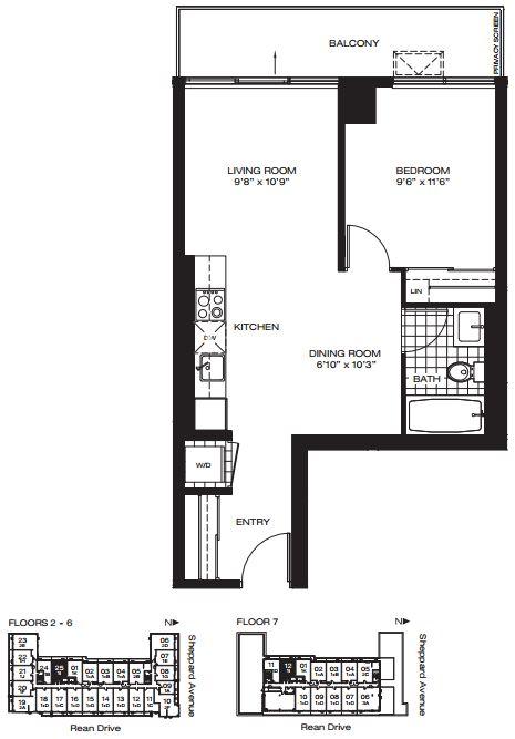
T-01
Line 5 - The North Tower
North Toronto, Toronto
1L+D
1BB+D
1Z+D
1CC+D
1EE+D2
1U+D
A peek inside NY2 Condos’ amenity space and two new model suites
The seven-storey condominium will house a modern cafe, retail space, fitness area and outdoor terrace with gardening plots.