Unit F
Oasis Townhomes on Lawrence
Glen Park, Toronto
Unit E
The Humbercrest Lambton Collection
The Towns of Lambton Mills
Lambton, Toronto
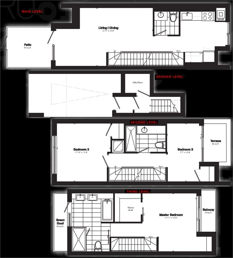
TH-3D-1
Bellwoods House
Niagara, Toronto
Glengarry
Glenhill Condominiums
Prince Courtyard Collection
The PRINCE Lambton Collection
The Humbercrest Courtyard Collection
Construction progresses past third floor at NERO Condos + Lofts on Dundas West
BuzzBuzzHome News recently visited the site and we’re pleased to report that construction has been progressing steadily.