FEATURED
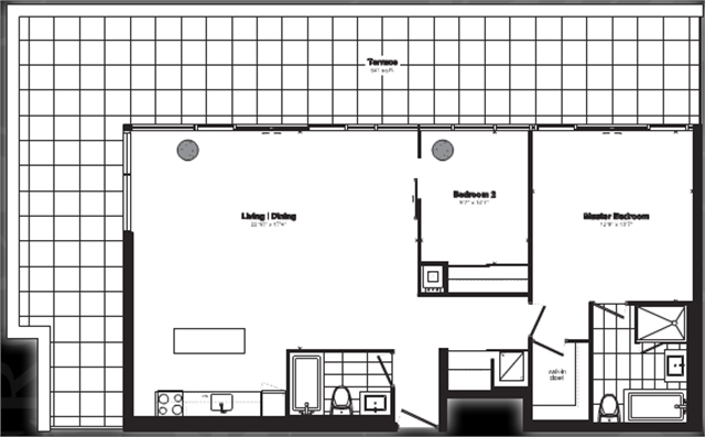
2C
Queen Church
Garden District, Toronto
E8
Motto
Bloorcourt Village, Toronto
2B
E7
2D
E6
2K
2G
Construction progresses past third floor at NERO Condos + Lofts on Dundas West
BuzzBuzzHome News recently visited the site and we’re pleased to report that construction has been progressing steadily.