FEATURED
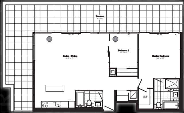
2C
Queen Church
Garden District, Toronto
E7
Motto
Bloorcourt Village, Toronto
E9
E6A
2K
2B
2G
2D
Construction progresses past third floor at NERO Condos + Lofts on Dundas West
BuzzBuzzHome News recently visited the site and we’re pleased to report that construction has been progressing steadily.