FEATURED
B17
Motto
Bloorcourt Village, Toronto
B18
B15
B21
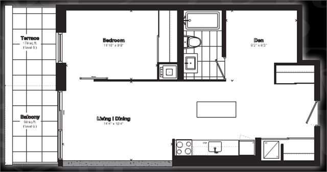
B20A
B23a
A4
C3a
Construction progresses past third floor at NERO Condos + Lofts on Dundas West
BuzzBuzzHome News recently visited the site and we’re pleased to report that construction has been progressing steadily.