FEATURED
1F+D
Queen Church
Garden District, Toronto
B21
Motto
Bloorcourt Village, Toronto
B18
B20A
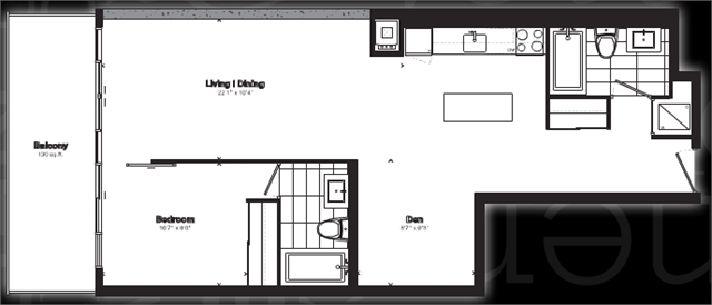
1G+D
1E+D
B17
B15
Construction progresses past third floor at NERO Condos + Lofts on Dundas West
BuzzBuzzHome News recently visited the site and we’re pleased to report that construction has been progressing steadily.