FEATURED
B21
Motto
Bloorcourt Village, Toronto
B15
1G+D
Queen Church
Garden District, Toronto
B20A
1F+D
B17
1E+D
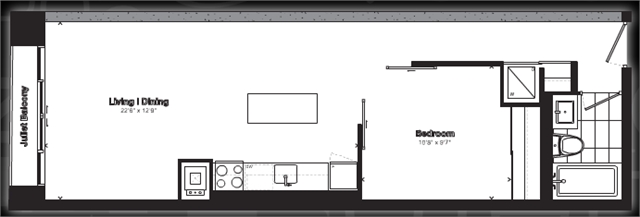
B18
Construction progresses past third floor at NERO Condos + Lofts on Dundas West
BuzzBuzzHome News recently visited the site and we’re pleased to report that construction has been progressing steadily.