FEATURED
B15
Motto
Bloorcourt Village, Toronto
1F+D
Queen Church
Garden District, Toronto
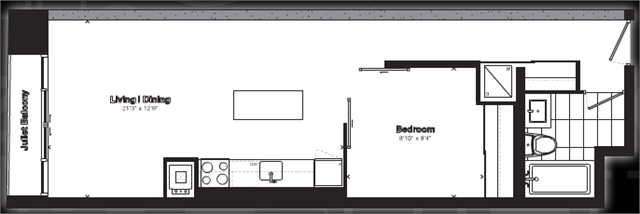
B20A
B21
B17
B18
1G+D
1E+D
Construction progresses past third floor at NERO Condos + Lofts on Dundas West
BuzzBuzzHome News recently visited the site and we’re pleased to report that construction has been progressing steadily.