



The top 10 Toronto developments on BuzzBuzzHome in January 2017
As new detached home prices in the Greater Toronto Area continually push higher amid extremely low supply levels, townhouses are become an increasingly appealing option for the average buyer.

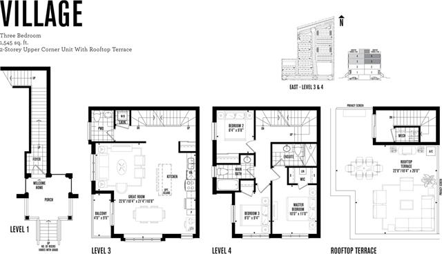
New release of floorplans coming to Minto Longbranch 2 on Saturday, February 11th
The new release of Minto Longbranch 2 townhomes include parking and are priced from $599,990.

Here is every new GTA low-rise residential development launching in fall 2016
As demand for low-rise homes throughout the Greater Toronto Area remains strong, developers are launching dozens of projects this fall.