hero-image-0

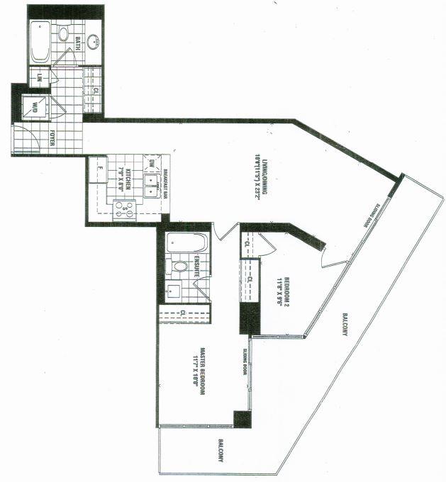
Savona Plan

Milan Condominiums
Sold
Sold
2
2
From 910
unit-banner-imageunit-banner-imageunit-banner-image
Savona Plan details
Savona Plan is now sold.
Check out available nearby plans below.