hero-image-0

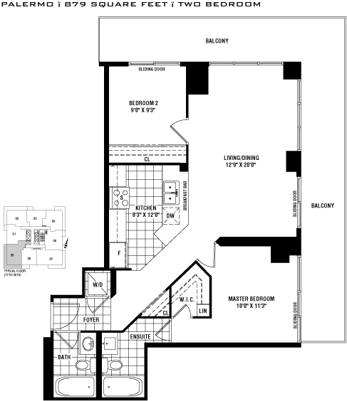
Palermo Plan

Milan Condominiums
Sold
Sold
2
2
From 879
unit-banner-imageunit-banner-imageunit-banner-image
Palermo Plan details
Palermo Plan is now sold.
Check out available nearby plans below.