hero-image-0

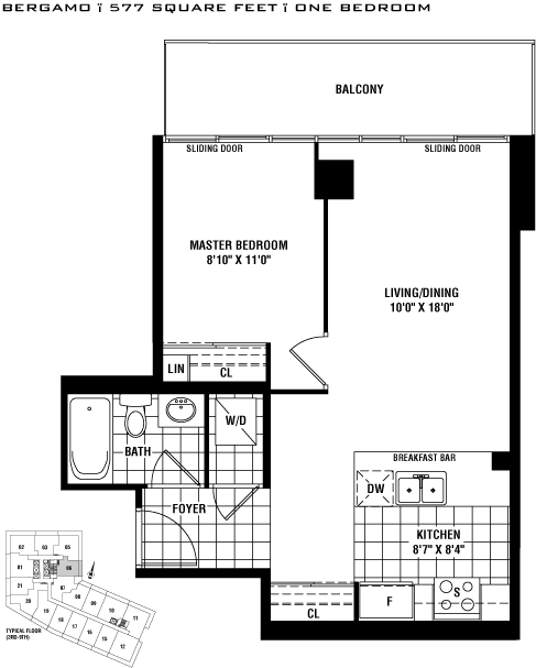
Bergamo Plan

Milan Condominiums
Sold
Sold
1
From 577
unit-banner-imageunit-banner-imageunit-banner-image
Bergamo Plan details
Bergamo Plan is now sold.
Check out available nearby plans below.