hero-image-0
Merton Yonge Condominiums
Sold
Sold
2
From 934
unit-banner-imageunit-banner-imageunit-banner-image
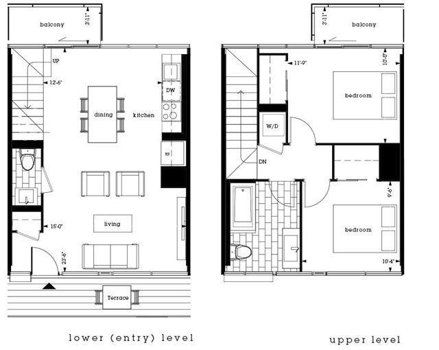
Units 408 & 409 Plan details
Units 408 & 409 Plan is now sold.
Check out available nearby plans below.