hero-image-0
Merton Yonge Condominiums
Sold
Sold
1
From 544
unit-banner-imageunit-banner-imageunit-banner-image
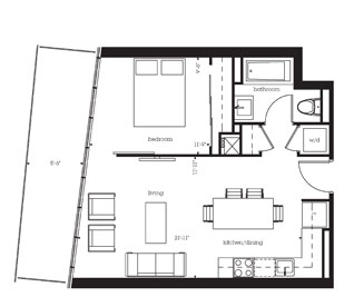
The West Plan details
The West Plan is now sold.
Check out available nearby plans below.