hero-image-0

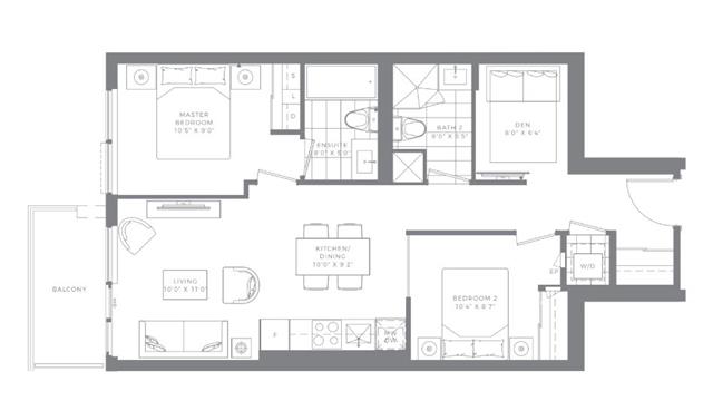
2BD-AG Plan

M2M Condos
Sold
Sold
2
2
1
From 751
unit-banner-imageunit-banner-imageunit-banner-image
2BD-AG Plan details
2BD-AG Plan is now sold.
Check out available nearby plans below.