hero-image-0

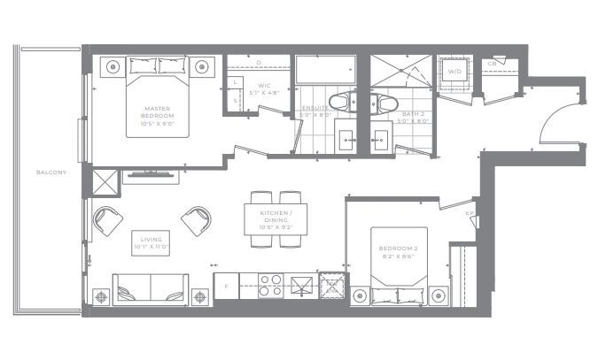
2B-K Plan

M2M Condos
Sold
Sold
2
2
From 750
unit-banner-imageunit-banner-imageunit-banner-image
2B-K Plan details
2B-K Plan is now sold.
Check out available nearby plans below.