hero-image-0

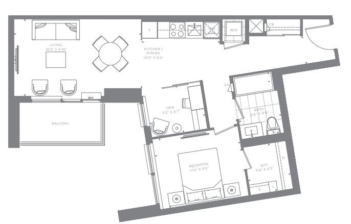
1BD-Y Plan

M2M Condos
Sold
Sold
1
1
1
From 665
unit-banner-imageunit-banner-imageunit-banner-image
1BD-Y Plan details
1BD-Y Plan is now sold.
Check out available nearby plans below.