hero-image-0

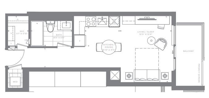
1B-Q Plan

M2M Condos
Sold
Sold
1
From 427
unit-banner-imageunit-banner-imageunit-banner-image
1B-Q Plan details
1B-Q Plan is now sold.
Check out available nearby plans below.