hero-image-0

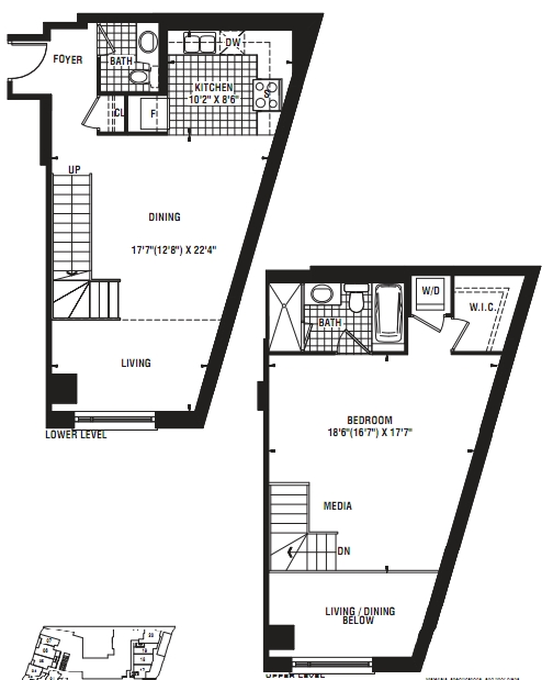
Loft N Plan

London on the Esplanade
Sold
Sold
1
From 1,145
unit-banner-imageunit-banner-imageunit-banner-image
Loft N Plan details
Loft N Plan is now sold.
Check out available nearby plans below.