hero-image-0

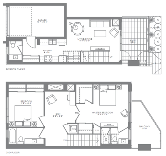
Auckland Plan

Life Condos
Sold
Sold
2
2
1
From 1,239
unit-banner-imageunit-banner-imageunit-banner-image
Auckland Plan details
Auckland Plan is now sold.
Check out available nearby plans below.