hero-image-0

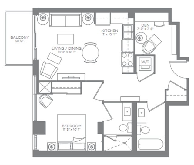
Vienna Plan

Life Condos
Sold
Sold
1
1
1
From 669
unit-banner-imageunit-banner-imageunit-banner-image
Vienna Plan details
Vienna Plan is now sold.
Check out available nearby plans below.