hero-image-0

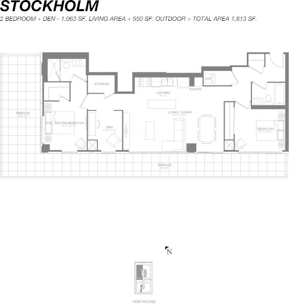
Stockholm Plan

Life Condos
Sold
Sold
2
2
1
From 1,063
unit-banner-imageunit-banner-imageunit-banner-image
Stockholm Plan details
Stockholm Plan is now sold.
Check out available nearby plans below.