hero-image-0

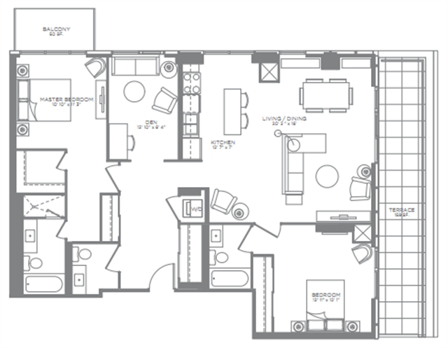
San Francisco Plan

Life Condos
Sold
Sold
2
2
1
From 1,342
unit-banner-imageunit-banner-imageunit-banner-image
San Francisco Plan details
San Francisco Plan is now sold.
Check out available nearby plans below.