hero-image-0

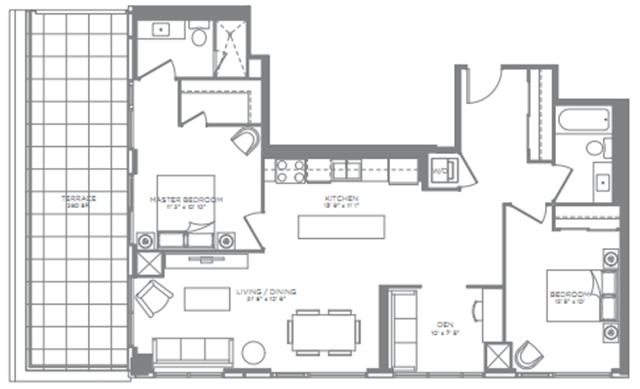
Prague Plan

Life Condos
Sold
Sold
2
1
1
From 1,099
unit-banner-imageunit-banner-imageunit-banner-image
Prague Plan details
Prague Plan is now sold.
Check out available nearby plans below.