hero-image-0

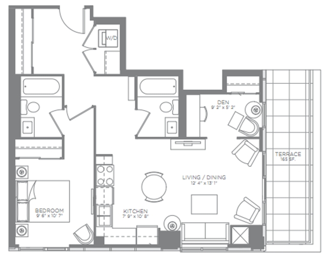
Geneva Plan

Life Condos
Sold
Sold
1
2
1
From 755
unit-banner-imageunit-banner-imageunit-banner-image
Geneva Plan details
Geneva Plan is now sold.
Check out available nearby plans below.