hero-image-0

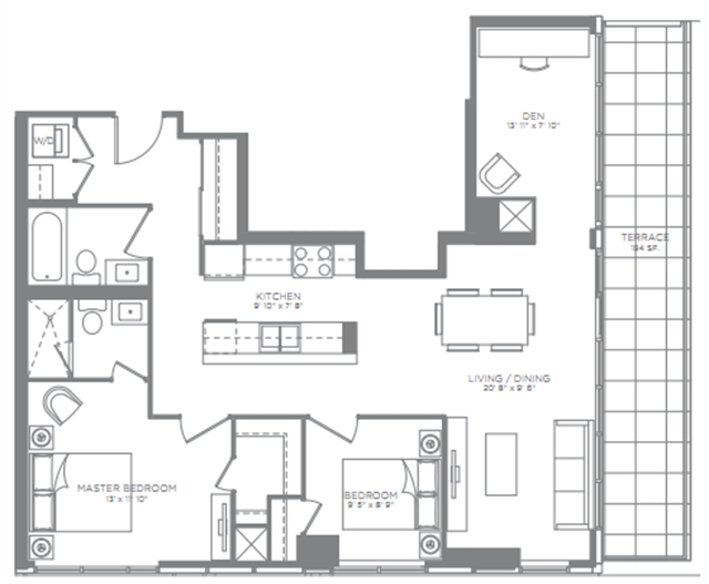
Frankfurt Plan

Life Condos
Sold
Sold
1
1
From 1,019
unit-banner-imageunit-banner-imageunit-banner-image
Frankfurt Plan details
Frankfurt Plan is now sold.
Check out available nearby plans below.