hero-image-0

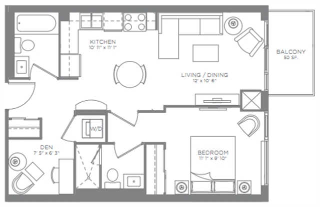
Chicago Plan

Life Condos
Sold
Sold
1
1
1
From 635
unit-banner-imageunit-banner-imageunit-banner-image
Chicago Plan details
Chicago Plan is now sold.
Check out available nearby plans below.