hero-image-0

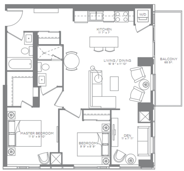
Atlanta Plan

Life Condos
Sold
Sold
2
1
1
From 898
unit-banner-imageunit-banner-imageunit-banner-image
Atlanta Plan details
Atlanta Plan is now sold.
Check out available nearby plans below.