hero-image-0

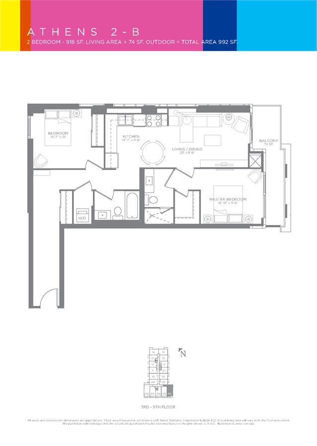
Athens Plan

Life Condos
Sold
Sold
2
2
From 918
unit-banner-imageunit-banner-imageunit-banner-image
Athens Plan details
Athens Plan is now sold.
Check out available nearby plans below.