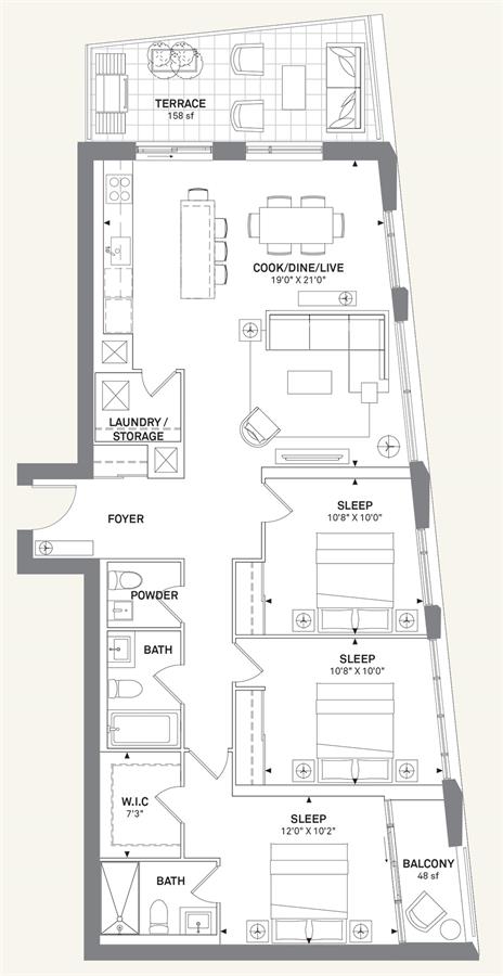
Suite 0929
Empire Quay House
East Bayfront, Toronto
Suite 628
Suite 1029
Suite 0829
Suite 532
Suite 1127
Suite 0729
Suite 1113
8-storey condo proposed for Kingston Road gas station site
A small gas station and auto repair shop in Scarborough’s Birch Cliff neighbourhood could be replaced by a mid-rise condominium development.