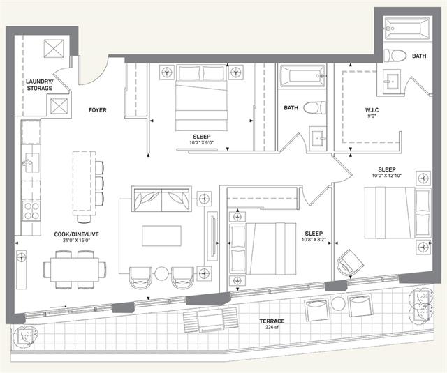
310
Linx Condominiums - The Reserve Collection
East End Danforth, Toronto
407
Angular (former)
Broadview North, Toronto
406
201
411
315
302
202
8-storey condo proposed for Kingston Road gas station site
A small gas station and auto repair shop in Scarborough’s Birch Cliff neighbourhood could be replaced by a mid-rise condominium development.