FEATURED
F3
Motto
Bloorcourt Village, Toronto
F2
3A
Queen Church
Garden District, Toronto
F6
F1
F4
968
Forma - East Tower
Entertainment District, Toronto
House of Assembly
Junction Triangle, Toronto
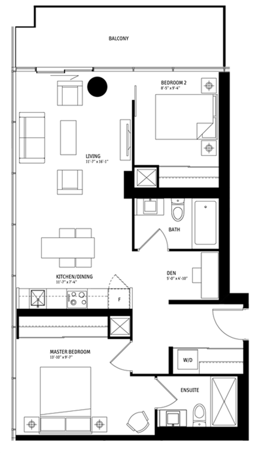
This is Toronto’s teeniest, tiniest condo
Maybe you’ve always liked tight spaces. Maybe you’ve always thought a couch was a better bed than a bed.