FEATURED
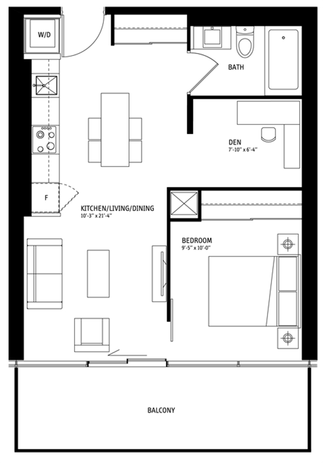
B17
Motto
Bloorcourt Village, Toronto
1G+D
Queen Church
Garden District, Toronto
B18
1F+D
B15
B21
B20A
1E+D
This is Toronto’s teeniest, tiniest condo
Maybe you’ve always liked tight spaces. Maybe you’ve always thought a couch was a better bed than a bed.