hero-image-0
J. Davis House
Sold
Sold
2
2
From 955
unit-banner-imageunit-banner-imageunit-banner-image
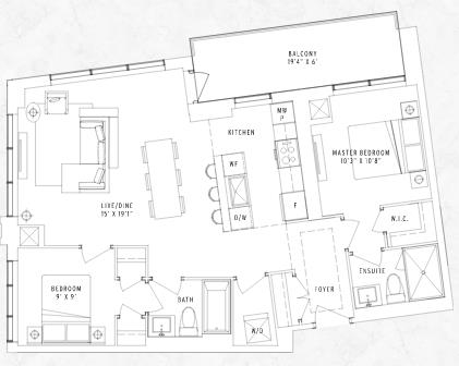
2B-9 Plan details
2B-9 Plan is now sold.
Check out available nearby plans below.