hero-image-0
hero-image-1
hero-image-2

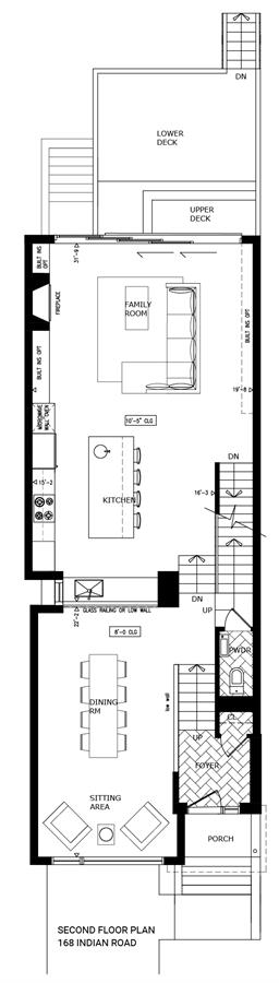
166 Indian Road Crescent

Indian Road Crescent
Sold
Sold
3
2
1
2,949
166 Indian Road Crescent details
unit-banner-image
unit-banner-image
unit-banner-image
166 Indian Road Crescent is now sold.
Check out available communities below.