hero-image-0

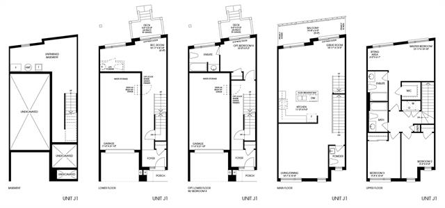
Unit J1 Plan

Humberwood Heights
Sold
Sold
3
2
1
From 1,962
unit-banner-imageunit-banner-imageunit-banner-image
Unit J1 Plan details
Unit J1 Plan is now sold.
Check out available nearby plans below.